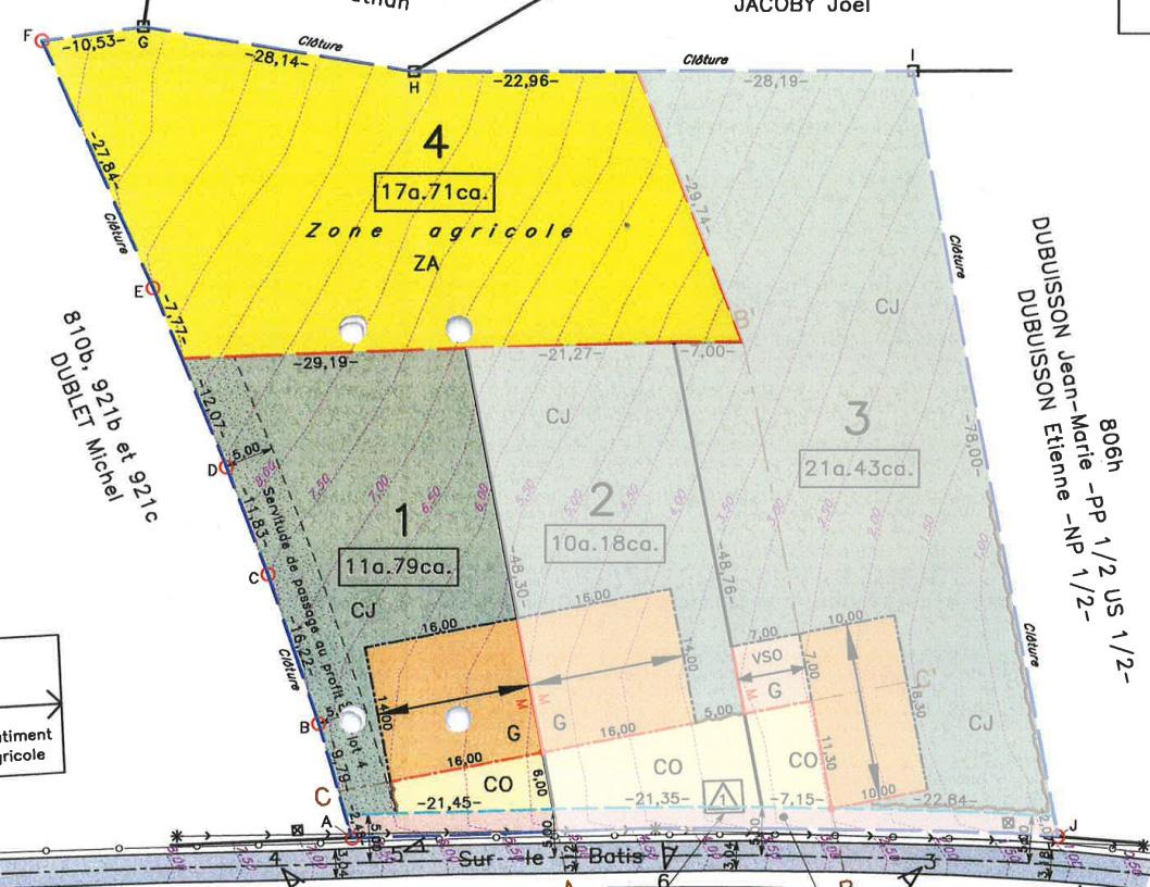
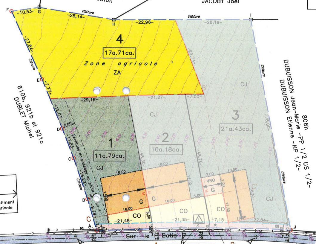
Pour plus d'informations ou pour une visite, appelez le - Dans un endroit calme à Tenneville se trouve ce terrain à bâtir de 11a 79ca. Ce terrain convient à la construction d'un bâtiment avec 3 façades. Le terrain a une largeur de 21,45 m et une profondeur de 48,30 m. Derrière ce terrain, il y a une belle vue sur la zone agricole. Il existe une possibilité d'acheter le(s) terrain(s) adjacent(s).
Heb je interesse in deze woning?
Heb je interesse in deze bouwgrond?
Neem contact met ons op voor een bezichtiging of meer informatie.
Stuur een bericht naar Liam Vanderperren