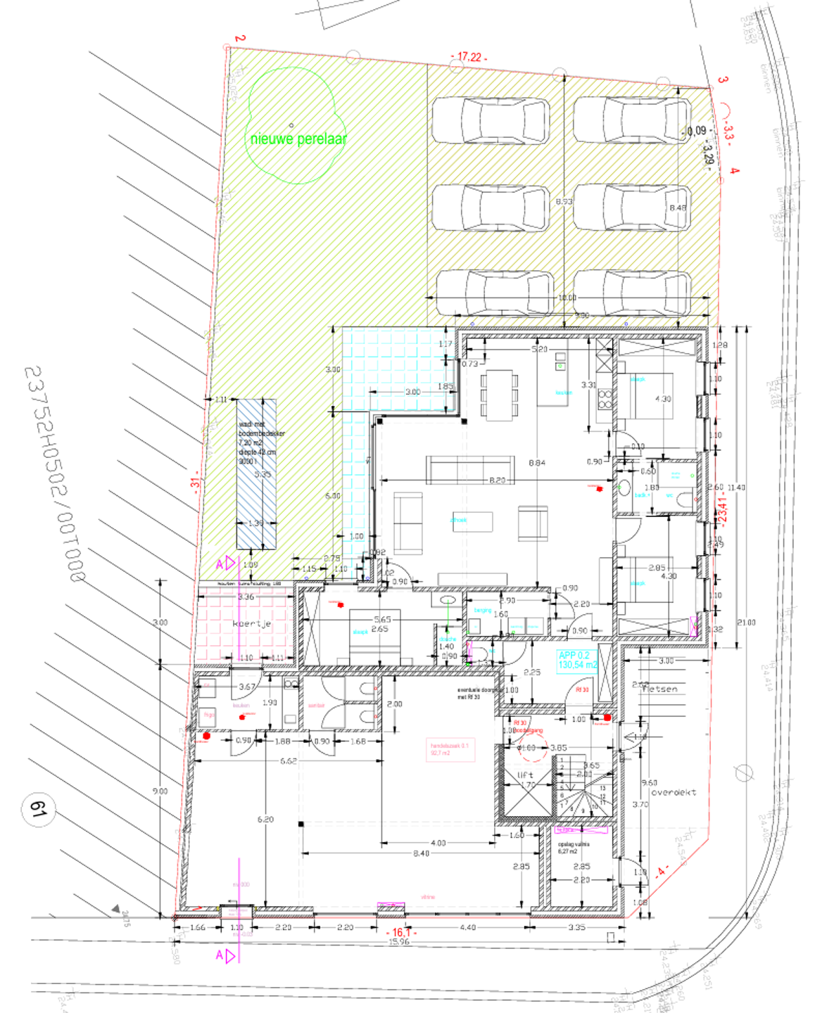
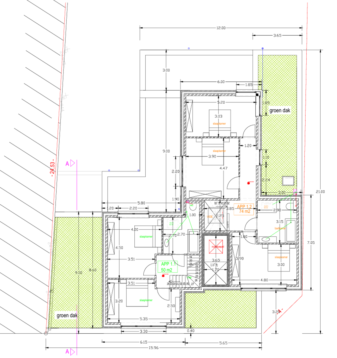
Projectgrond met een vergunningsaanvraag lopende voor de realisatie van vier kwalitatieve entiteiten te koop. Dit betreft een handelsgelijkvloers, een ruim gelijkvloers appartement en twee ruime duplexappartementen. De residentiële entiteiten onderscheiden zich door hun uitzonderlijke oppervlaktes van respectievelijk 130 m², 150 m² en 173 m², wat vandaag een factor is waar u zich kan in onderscheiden ten opzichte van uw concurrenten. Elk appartement beschikt over privatieve terrassen en bijhorende parkeerplaatsen (bovengronds), wat het wooncomfort aanzienlijk verhoogt. Het project is ontworpen met oog voor functionaliteit, ruimte en hedendaags wooncomfort, en biedt zowel voor eindgebruikers als investeerders een bijzonder aantrekkelijk potentieel. De combinatie van een handelsruimte met ruime wooneenheden zorgt voor een evenwichtige en rendabele mix. De vergunningsaanvraag is reeds ingediend, waardoor de koper meteen kan verder bouwen op een concreet en uitgewerkt project na volledige goedkeuring.
Heb je interesse in deze woning?
Heb je interesse in deze bouwgrond?
Neem contact met ons op voor een bezichtiging of meer informatie.
Neem contact op met Thibo
+32 53 59 49 32Stuur een bericht naar Thibo
Neem contact op met Thibo
+32 53 59 49 32