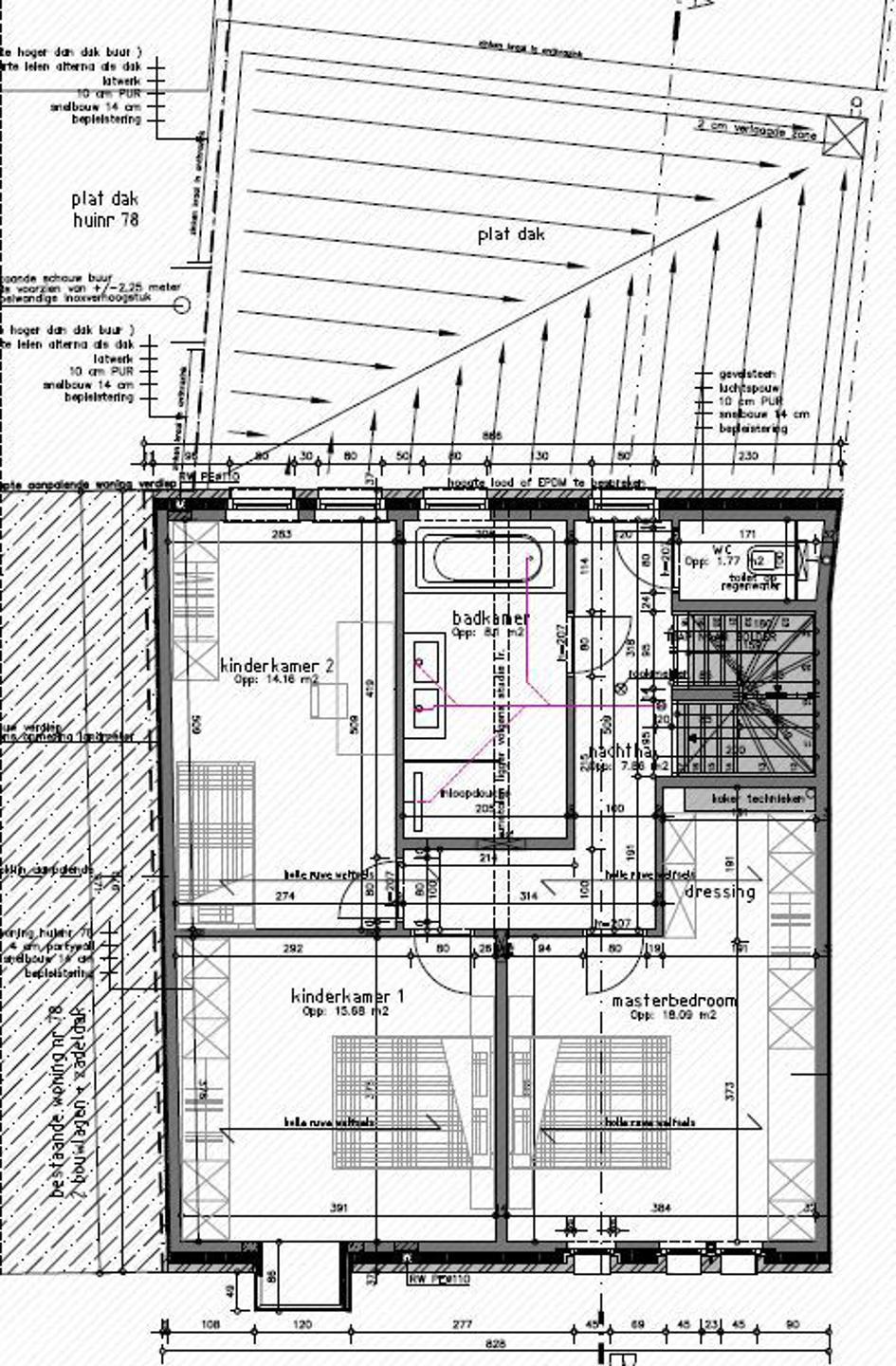
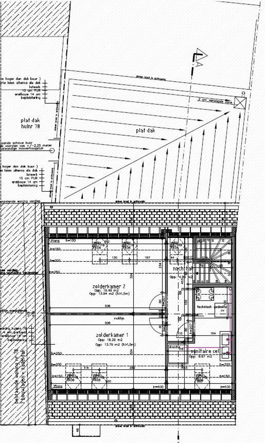
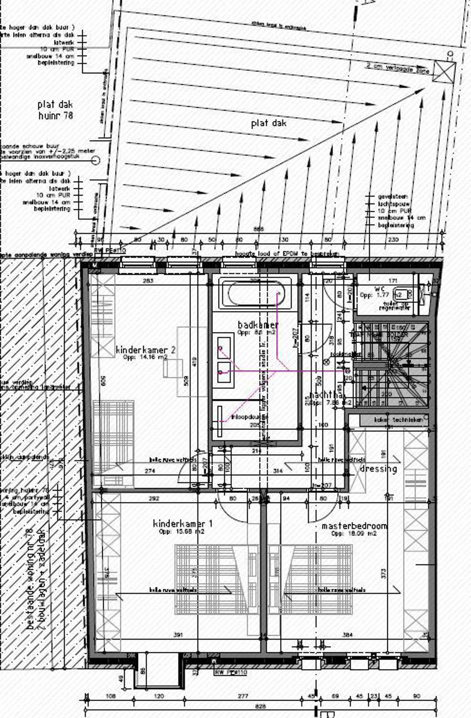
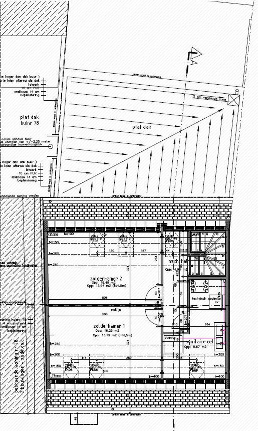
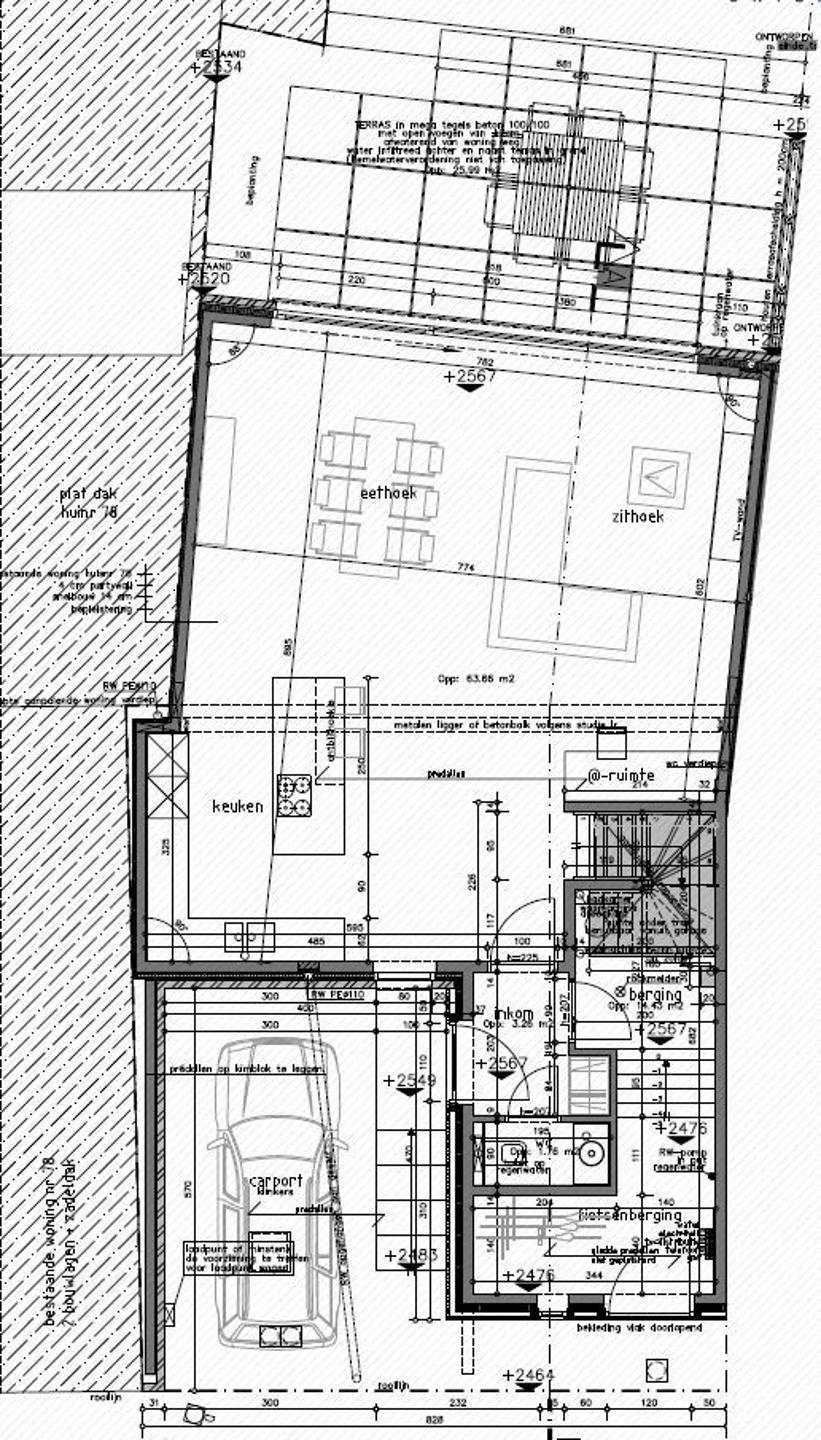
Voor meer info of een bezoek, bel - Op een rustige locatie in Outer (Ninove) bevindt zich deze nieuwbouwwoning. Op het gelijkvloers is er een carport aanwezig die toegang geeft naar de inkomhal van de woning. In de inkomhal bevindt zich het apart toilet en de berging. Verder op het gelijkvloers is er gekozen voor een open eet- en leefruimte met open keuken. Via een groot schuifraam in de living bereikt men het aangelegd terras en de aangelegde tuin. Op de eerste verdieping zijn er drie slaapkamers, een apart toilet en een ruime badkamer voorzien van ligbad, inloopdouche en dubbele lavabo aanwezig. Via een vaste trap bereikt men nog de twee zolderkamers. Op de benedenverdieping is er aan de voorgevel nog een extra fietsenberging voorzien.
*Prijs vermeld in de advertentie betreft prijs excl. BTW en kosten.
*Mogelijkheid tot aankoop onder 6% BTW.
*Prijs vermeld in de advertentie betreft prijs excl. BTW en kosten.
*Mogelijkheid tot aankoop onder 6% BTW.
Heb je interesse in deze woning?
Heb je interesse in deze woning?
Neem contact met ons op voor een bezichtiging of meer informatie.
Stuur een bericht naar Liam Vanderperren