 
                  
                 
                  
                 
                  
                 
                  
                 
                  
                 
                  
                 
                  
                 
                  
                 
                  
                 
                  
                Commerciële ruimte met klasse – en bakken potentieel
Een kantoor, winkel of creatieve ruimte waar je écht iets mee kunt? Check. Deze stijlvolle handelsruimte van 250 m² ligt op een strategische locatie in het centrum van Antwerpen – vlak bij high-end shopping, bruisende horeca en creatieve kantoren. Je zit hier letterlijk tussen het volk, zonder midden in de drukte te hoeven staan. Slim én stijlvol dus.
Ruimte die ademt
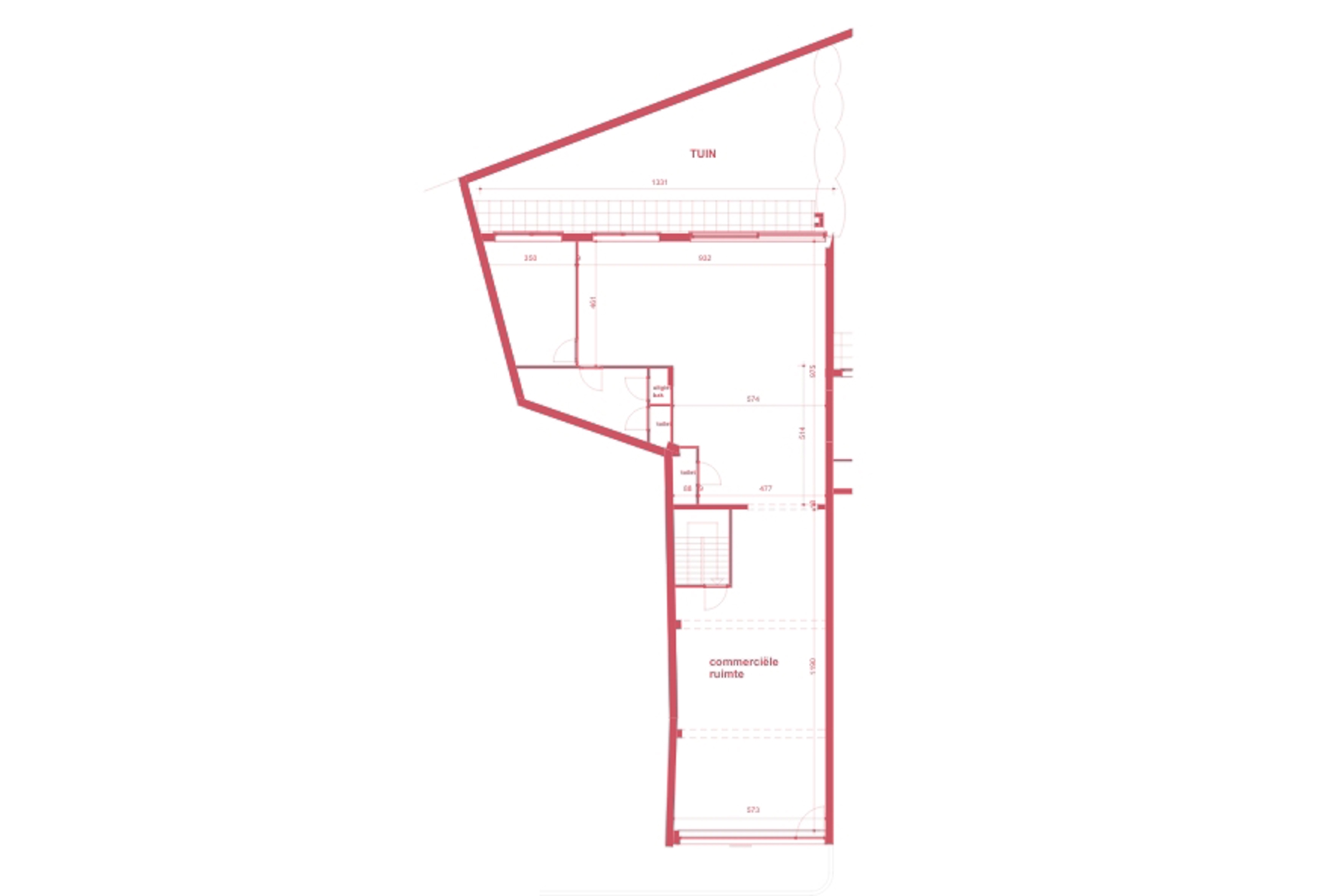
Binnenkomen doe je in een lichte, open ruimte van formaat. Alles gelijkvloers, met hoge plafonds en een indeling die je volledig naar je hand kunt zetten. Strakke showroom? Hippe conceptstore? Professioneel kantoor met een creatieve twist? Deze plek past zich aan aan jouw verhaal. En alsof dat nog niet genoeg is, krijg je er een enorme kelder bovenop. Geen stoffige opslag, maar een echte meerwaarde: ideaal voor stock, archief of zelfs extra werkplekken.
Frisse looks incoming
De gevel zit al goed, maar de ramen worden binnenkort vernieuwd – strak in profiel, klaar voor jouw branding. Da’s een instant upgrade qua uitstraling én comfort. Hier loop je niet zomaar voorbij: je zaak zal gezien worden.
Rustig gelegen, maar toch in 't midden van alles
Je zit net buiten de drukste loopstraten, maar met passage genoeg en bereikbaarheid in overvloed. Klanten, collega’s of leveranciers? Iedereen vindt hier moeiteloos z’n weg. Parking in de buurt, openbaar vervoer vlakbij. Alles op wandelafstand. Echt waar.
Wat mag je verwachten? 
Een ruime commerciële ruimte van 250 m² op het gelijkvloers, boordevol licht en mogelijkheden. Een grote kelder die je volledige plannen ondersteunt – of ze nu logistiek, creatief of praktisch zijn. Nieuwe ramen die zorgen voor uitstraling én comfort. En dat alles in een supercentrale locatie, zonder de chaos van de winkelstraten. Of je nu winkelier, ondernemer of creatieve duizendpoot bent: dit is jouw kans om groots te gaan.
Smeed maar volop plannen en deel ze via verhuur@ugly.be!